$999,900
$999,900
For more information regarding the value of a property, please contact us for a free consultation.
3 Beds
2.5 Baths
2,569 SqFt
SOLD DATE : 04/11/2025
Key Details
Sold Price $999,900
Property Type Single Family Home
Sub Type Single Family Residence
Listing Status Sold
Purchase Type For Sale
Square Footage 2,569 sqft
Price per Sqft $389
MLS Listing ID 73294513
Sold Date 04/11/25
Style Other (See Remarks)
Bedrooms 3
Full Baths 2
Half Baths 1
HOA Fees $92/mo
HOA Y/N true
Year Built 2024
Tax Year 2024
Lot Size 0.300 Acres
Acres 0.3
Property Sub-Type Single Family Residence
Property Description
NEW 3 HOME neighborhood. FEB OCCUPANCY, Home is nearing completion!______________________________________________________________________ The Casey features an open floor plan with expansive living area, Kitchen cabinetry with granite countertops and stainless appliance package, pantry, home office or study, half bath and dining area with sliders to wooden deck overlooking back yard. The primary suite features oversized walk-in closet, tiled bath, with custom shower, vanity with granite countertop and twin sinks, second floor laundry and two additional bedrooms. You will be impressed with the oversized 2 car garage. Discover this great new neighborhood near park and Beverly Golf & Tennis Club. SPECIAL NEW CONSTRUCTION FINANCE OFFER**
Location
State MA
County Essex
Zoning R
Direction McKay to Goodyear St to Echo Ave to Sturtevant St Ext.
Rooms
Basement Full
Primary Bedroom Level Second
Dining Room Flooring - Hardwood, Balcony / Deck, Recessed Lighting, Slider
Kitchen Pantry, Cabinets - Upgraded, Open Floorplan, Recessed Lighting, Stainless Steel Appliances
Interior
Interior Features Recessed Lighting, Closet, Study, Mud Room
Heating Forced Air
Cooling Central Air
Flooring Tile, Hardwood, Other, Flooring - Hardwood
Fireplaces Number 1
Fireplaces Type Living Room
Appliance Water Heater, Oven, Dishwasher, Microwave, Range, Range Hood
Laundry Second Floor
Exterior
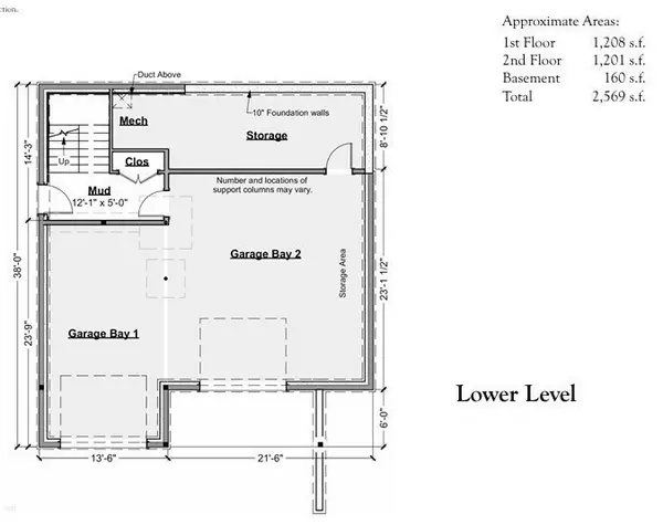
Garage Spaces 2.0
Community Features Tennis Court(s), Park, Walk/Jog Trails, Golf, Highway Access, T-Station
Roof Type Shingle
Total Parking Spaces 6
Garage Yes
Building
Lot Description Corner Lot, Easements
Foundation Concrete Perimeter
Sewer Public Sewer
Water Public
Architectural Style Other (See Remarks)
Others
Senior Community false
Read Less Info
Want to know what your home might be worth? Contact us for a FREE valuation!

Our team is ready to help you sell your home for the highest possible price ASAP
Bought with Ellen Meehan • Rear Window Realty, LLC
GET MORE INFORMATION

REALTOR®






